Navy Shore Station Communication Antennas

Shore Station LF & VLF Antennas - 

Also see Bill Heidig (DECO/Westinghouse/DCA Engineer) VLF Site Photo Page
Also see VLF transmitting antenna design  
Also see NAVELEX 0101, LF & VLF Systems Handbook
Also see VLF antenna design NPS thesis

Jim Creek Valley Span VLF
jimcreek-ant-01.JPG (54673 bytes)
Yosami Triatic VLF
yosami-02.JPG (207887 bytes)
Lualualei Triatic VLF
lua-ant-01.JPG (69346 bytes)
Harold E Holt (North West Cape) Tri-Deco VLF
holt-ant-01.JPG (373350 bytes)
Balboa Triatic  VLF
balboa-ant-01.JPG (67726 bytes)

 

Cutler Tri-Deco VLF
cutler-ant-103.JPG (43064 bytes)

 

Annapolis Goliath VLF
annapolis-ant-01.JPG (139074 bytes)

Nord LF folded unipole antenna - top fed tower
ant-nord-120401.JPG (98560 bytes)

Nord LF antenna - NPG Stockton
ant-nord-npg-01a.JPG (1216086 bytes)


Shore Station HF Antennas - See NAVELEX 0101,104 HF Antenna Handbook

Transmitting Antennas at NRS(T) Battle Point

Great Video - Virtual tour of reconstructed site
Antenna field map

Receiver Site Antennas at NAVCOMMSTA Greece

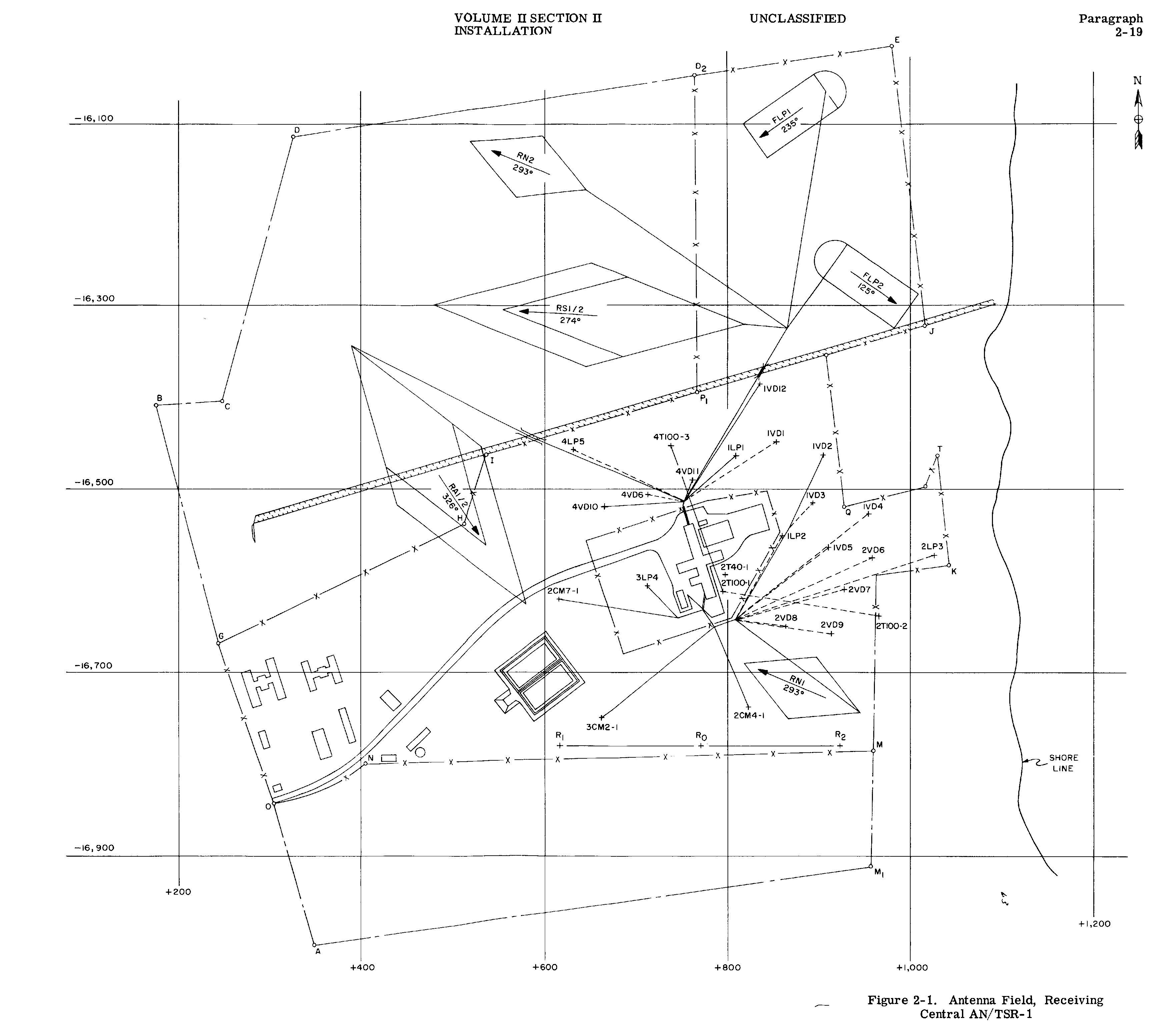
The Receiving Central antenna locations are shown in figure 2-1. The antenna field is divided into four 90-degree sectors that are joined at approximately the center of the Receiving Central complex.

greece-r-ant-layout.jpg (1002656 bytes)

   The antennas, except for the two Fixed Log-Periodic and four Rhombics, are designated by a sector number, an abbreviation indicating the type of antenna, and the number of that type. For example, 1LP2 identifies Rotatable Log-Periodic antenna number 2 that is located in sector 1. The fixed Log-Periodic antennas are designated FLP1 and FLP2, the single Rhombics are RN1 and RN2, and the Dual-Nested Rhombics are RA1/2 and RS1/2 a. Six Rotatable Log-Periodic, 6.5 to 60 megacycles, type 237-1A.
b. Two Fixed Log-Periodic, 2.5 to 32 megacycles, type 726-1.
c. Eleven 3-wire Vertical Folded Doublet, 6 to 32 megacycles, type FDA-3-600R.
d. One Conical Monopole, 2 to 8 megacycles, type OCM-68.
e. One Conical Monopole, 4 to 16 megacycles, type OCM-28.
f. One Conical Monopole, 7 to 28 megacycles, type OCM-17.
g. Two Dual-Nested Rhombic.
h. Two Single Rhombic.
i. Two Low-Frequency Long-Wire, one 600-foot and one 700-foot, type RLW.
j. One VHF, 100 to 174 megacycles, type F-11.
k. One UHF, 225 to 400 megacycles, type AT-197.
l. One UHF, 225 to 400 megacycles, type AT-150.

Transmitter Site Antennas at NAVCOMMSTA Greece
greece-t-ant-layout.jpg (1359555 bytes)

A detailed plot plan of the Transmitting Central antenna field is illustrated in figure 2-1. Antennas installed at the Transmitting Central include the following types and quantities:
a. Ten Rotatable Log-Periodic, 6.5 to 60 megacycles, type 237A-1A.
b. Ten Conical Monopole, 2 to 8 megacycles, type OCM-68.
c. Eight Conical Monopole, 4 to 16 megacycles, type OCM-28.
d. Ten Conical Monopole, 7 to 28 megacycles, type OCM-17.
e. One Conical Monopole, Tuned, 4 to 30 megacycles, type 775.
f. Fourteen 3-Wire Vertical Doublet, 6 to 32 megacycles, type FDA-3-600R.
g. Two Low-Frequency Longwire, 417-foot and 917-foot, type TLW.
h. Six Dual Nested Rhombic.
i. Two Single Rhombic.
j. One Pan Polar Low-Frequency Tower, 630-foot.
k. One Low-Frequency Tower, 353-foot.
1. One UHF, 225 to 400 megacycles, type AT-50

Antenna Lead Switching System
xmtr-sw-01.JPG (81809 bytes)

Barrigada Guam 1956 - "6-10" Type switch-yard #4 looking east  
ant-switchyard-barrigada-02.jpg (3920486 bytes)
Barrigada Guam 1956 - "6-10" Type switch-yard #4 from pivot-pole side 
ant-switchyard-barrigada-01.jpg (3734325 bytes)
Barrigada Guam 1956 - "6-10" Type switch-yard #4 looking south
ant-switchyard-barrigada-03.jpg (3911532 bytes)
Switchyards around transmitter building- Barrigada Guam
Guam Communications Station 002.jpg (348728 bytes)
Barrigada Guam
Guam Communications Station 015.jpg (172448 bytes)
Barrigada Guam
Guam Communications Station 247g.jpg (2245469 bytes)
Typical Receiver Site Antenna Layout
rcvr-ant-82.JPG (60900 bytes)

rcvr-ant-91.JPG (76153 bytes)

Rhombic

rhombic-att-01.jpg (3267470 bytes)

3-Wire Rhombic
rhombic-01.JPG (6176 bytes)

Nested Rhombic 
rcvr-ant-84.JPG (50878 bytes)

Quadrant
ant-quad-1102-01.JPG (405548 bytes)
Wire Antennas - Also see USMC Field Antenna Handbook -  download 4 MB pdf  (thanks to C Anderson)
600 Ohm Terminator for Rhombic

ant-ter500-1311-01.jpg (112541 bytes)

ant-ter500-1311-02.jpg (89317 bytes) ant-ter500-1311-05.jpg (92748 bytes) ant-ter500-1311-06.jpg (82365 bytes)
ant-ter500-1311-07.jpg (98904 bytes) ant-ter500-1311-03.jpg (99427 bytes) ant-ter500-1311-04.jpg (143539 bytes) --
Conical Monopole Antenna - The conical monopole antenna is used in HF communications. It is a broadband, vertically polarized, compact omnidirectional antenna. This antenna is adaptable to ship-to-shore, broadcast, and ground-to-air communications. It is used both ashore and aboard ship. When operating at frequencies near the lower limit of the HF band, the conical radiates in much the same manner as a regular vertical antenna. At the higher frequencies, the lower cone section radiates, and the top section pushes the signal out at a low angle as a sky wave. This low angle of radiation causes the sky wave to return to the Earth at great distances from the antenna.  Therefore, this antenna is well suited for long-distance communications in the HF band.

Conical Monopole
AS-2205/FRC (7-28 mc)

ant-con-1103-02.JPG (224408 bytes)

Conical Monopole
Hy-Gain 2012AA (3-30 mc)

ant-2012aa-1103-01.JPG (169120 bytes)

ant-2012aa-1103-03.JPG (429210 bytes)

Conical Monopole
Hy-Gain 2012AA details

ant-2012aa-1103-02.JPG (271012 bytes)

"Performance Evaluation of Conical Monopole" -  Dec. 1992 NPS Thesis (download 2.6 MB pdf)

Conical Monopole -Hy-Gain 2012AA - Kato Souli Greece
2012 AA HG CONICAL MONOPOLE 7.JPG (42089 bytes)

2012 AA 8.JPG (45273 bytes)

Inverted Cone Antenna - The inverted cone antenna is vertically polarized, omnidirectional, and very broadbanded. It is used for HF communications in ship-to-shore, broadcast, and ground-to-air applications. The radial ground plane that forms the ground system for inverted cones is typical of the requirement for vertically polarized, ground-mounted antennas. The radial wires are one-quarter-wavelength long at the lowest designed frequency.
Inverted Cone
AS-2212/FRC (2-30 mc)
AS-2213/FRC (2.5-30 mc)
AS-2214/FRC (3-32 mc)

Inverted Cone - Kato Souli Greece
inv-cone-K_SOULI.JPG (44712 bytes)

inc-cone-01.jpg (7385 bytes)

Feed Point
ant-inv_cone-jax-1987.jpg (1865662 bytes)

Inverted Cone (Kato Souli)
INVERTED CONE KATO SOULI 2.JPG (49533 bytes)
Elevated Discone
ant-con-1103-01.JPG (210096 bytes)
Granger 3005 Spira-Cone

Data Sheets

ant-spiracone-3005-01.jpg (665429 bytes) ant-spiracone-3005-02.jpg (250981 bytes) NRTF Niscemi
ant-spiracone-niscemi.JPG (931932 bytes)
----photo info----
Sleeve Antenna - The sleeve antenna is used primarily as a receiving antenna. It is a broadband, vertically polarized, omnidirectional antenna. Its primary uses are in broadcast, ship-to-shore, and ground-to-air communications. Although originally developed for shore stations, there is a modified version for shipboard use. Photos below show a sleeve antenna for shore stations. Sleeve antennas are especially helpful in reducing the total number of conventional narrowband antennas that otherwise would be required to meet the requirements of shore stations. With the use of multicouplers, one sleeve antenna can serve several receivers operating over a wide range of frequencies. This feature also makes the sleeve antenna ideal for small antenna sites. When used for transmitting, sleeve antennas can typically handle 30kw with less than 3:1 VSWR over a 3:1 frequency range
sleeve-01.jpg (20185 bytes) Sleeve Antenna at NPG - this has two wire-spreaders in the vertical section
ant-sleeve-npg-01a.JPG (1137382 bytes)
Sleeve Antenna at NPG 
ant-sleeve-npg-02a.JPG (671206 bytes)

NAVRADSTA (T) Barigada Guam - Sleeve Antenna #2007 RF Transformer and Styroflex Cable Attachment

ant-sleeve-barrigada.jpg (3781861 bytes)

Sleeve Antenna dimensions
sleeve-dim-01.JPG (298518 bytes)
Sleeve Antenna dimensions
sleeve-dim-03.JPG (196118 bytes)
Sleeve Antenna with reflector and director
sleeve-dim-02.JPG (555272 bytes)
--
Fixed Log Periodics
ant-lp-1103-01.JPG (306156 bytes)
Vertical Fixed Log Periodics
rcvr-ant-83.JPG (90980 bytes)

Sector Vertical Log Periodic
ant-lp-1103-02.JPG (160774 bytes)

Horizontal Fixed Log Periodic
(Kato Souli)

LP HF 10.JPG (57244 bytes)
Rotatable Log Periodic - North West Cape
holt-rp-LPDNWC1.jpg (246323 bytes)
Rotatable Log Periodic
ant-lp-1103-03.JPG (515293 bytes)
Rotatable Log Periodic
 - NGE Nea Makri Greece
LP-ROT-N-MAKRI-01.JPG (36056 bytes)
AS-3482 Rotatable Log Periodic
ant-as3482-rlp-1402.jpg (1851148 bytes)
Rotatable Log Periodic - NQM Midway
Midway 1 of 3 RLPAs - LoRes.JPG (82323 bytes)
Rotatable Log Periodic
shore-6506-02.JPG (106522 bytes)
Rotatable Log Periodic
 - NGR Nea Makri Greece
LP-ROT-N-MAKRI-02.JPG (33487 bytes)
Rotatable Log Periodic - Barrigada Guam
Guam Communications Station 057.jpg (621515 bytes)
AN/FRA-109
(similar to AN/FRA-107)

ant-fra-1103-00.JPG (517185 bytes)

fra109-02.JPG (177954 bytes)

4-30 mc, 600kw PEP transmitting antenna system - steerable beam or omnidirectional

FRA-109 Monopole
ant-fra-1103-02.JPG (419499 bytes)

FRA-109 reflector
ant-fra-1103-01.JPG (348772 bytes)

Kato Souli Greece
CONICAL MONOPOLE KATO SOULI 1.JPG (63222 bytes)

  FRA-109 at NRTF Dixon CA

  FRA-109 at NRTF Dixon CA

  FRA-109 at Asmara Tract H
asmara-tract-h-ch5ph01.jpg (411186 bytes)

Kato Souli Greece
3 CON MON GENERAL VIEW 12.JPG (49098 bytes)

greece-seabee-fra109.jpg (488162 bytes)

CDAA Receiving Antenna Systems

AN/FRD-10

AN/FRD-10 CDAA page

frd10-imp-01.jpg (44451 bytes)

Mainly used for NAVSECGRU DF/Intercept - but several were also used for COMMSTA general service communications

CDAA Components
rcvr-ant-86.JPG (104695 bytes)

AN/TRA-40 CDAA
ant-tra40-1103-01.JPG (672122 bytes)

VHF/UHF Antennas for Naval Air Stations
See Naval Aeronautical Facilities Electronics Criteria

AS-768/GR 225-400MHz
225-400 MHz antennas

AT-150/SRC coaxial dipole
AS-390/SRC stub dipole
ant-nas-uhf-01.jpg (217337 bytes)

ant-nas-uhf-02.jpg (107723 bytes)

AS-1018/URC collinear dipole
as1018-2310-02.jpg (1025733 bytes)

AT-150/SRC coaxial dipole
at150-src-1303-1.JPG (35342 bytes)

AS-390/SRC - info -
as390-01.jpg (96464 bytes)

Typical Installation
AS-1018/URC
NT-66095 (vertical dipole)
AS-768/GR
ant-nas-vhf-uhf-01.jpg (193638 bytes)

Typical Site Layout
ant-nas-vhf-uhf-02.jpg (171677 bytes)