Navy COMMSTA Building Plans and Equipment Layout

NAVFACENGCOM  N62470-92-D-8965 "Navy Cold War Communication Context: Resources Associated with the Navy's Communication Program 1946-1989" (1997)
Survey of properties and facilities
Table of contents and pdf download

NAVELEX 0101,102 "Naval Shore Electronics Criteria: Naval Communications Station Design" (1971)
COMMSTA design manual
Table of contents and pdf download

NAVSHIPS 92675 "Handbook of Naval Shore Station Electronics Criteria"  (1956-60)
Table of contents and pdf downloads

Below are some selected interesting figures

shore-2-15.JPG (71027 bytes)
major comm station layout
shore-2-16.JPG (80498 bytes)
comm center functional and traffic flow diagram
shore-2-19.JPG (137970 bytes)
typical room layout for comm center
shore-2-17.JPG (332765 bytes)
communications system block diagram
shore-2-22.JPG (207155 bytes)
receiver building, basement floor plan
shore-2-23.JPG (205567 bytes)
receiver building, first floor  plan
shore-2-24.JPG (174056 bytes)
receiver building, third floor  plan
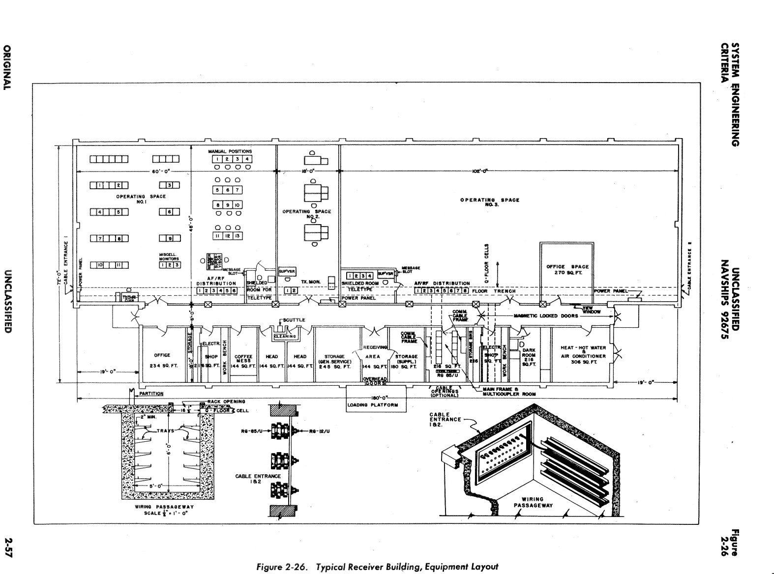
shore-2-26.JPG (292266 bytes)
receiver building, equipment  layout
shore-2-27.JPG (200585 bytes)
receiver site antenna layout
shore-2-27a.JPG (243998 bytes)
receiving RF distribution system
shore-2-28.JPG (183371 bytes)
DC primary test board SB/471/FG
shore-2-29.JPG (221712 bytes)
AF Primary Test Board
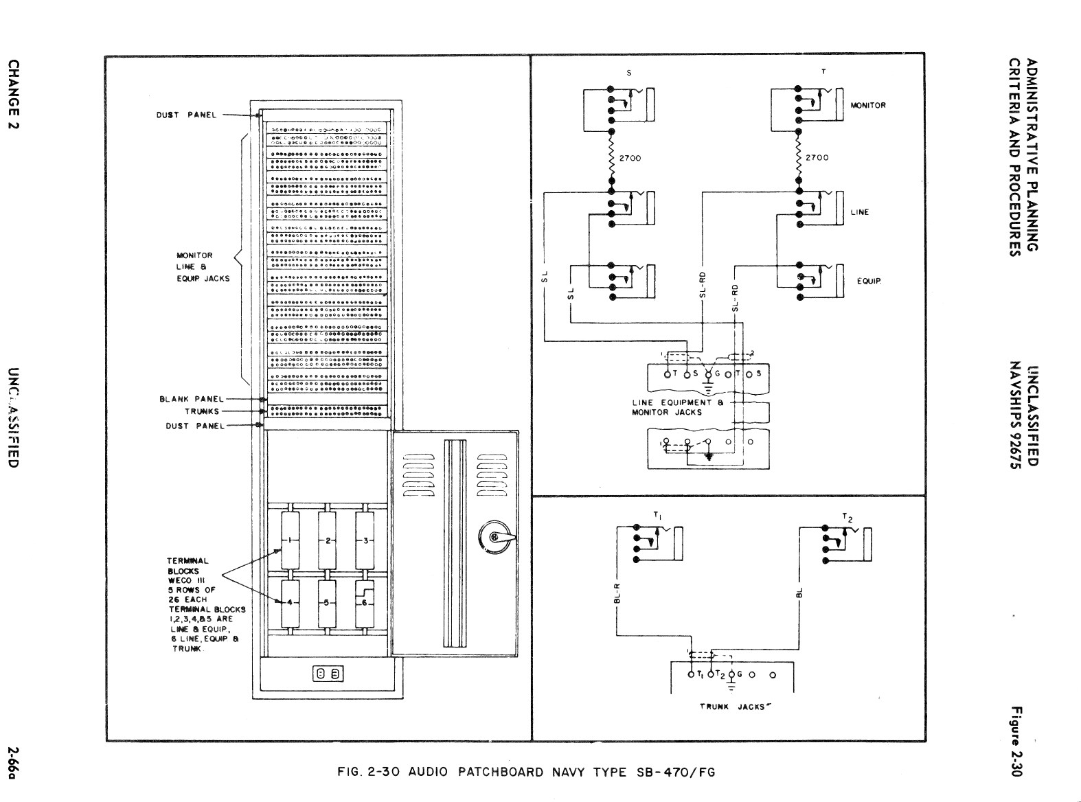
shore-2-30.JPG (239059 bytes)
AF Patchboard SB-470/FG
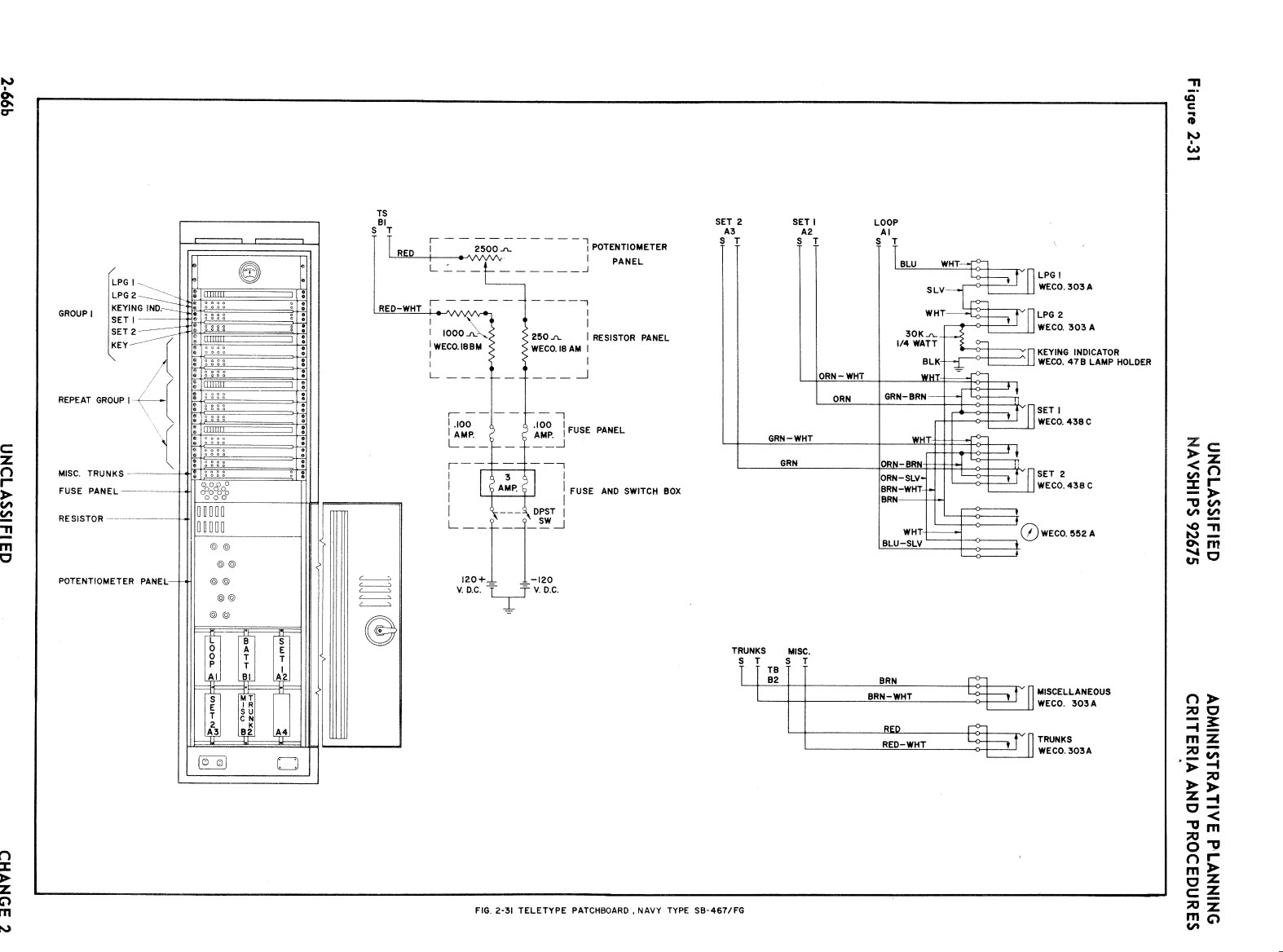
shore-2-31.JPG (200458 bytes)
TTY Patchboard SB-467/FG
Guam - patch panel
Patchboards at NAVCOMMSTA Guam - Note AN/FCC-3 multiplexer in Rack #14 and TH-39/UGT keyer in Rack #15
shore-2-18.JPG (173114 bytes)
MDF - Main Distribution Frame - terminal blocks
shore-2-31a.JPG (244433 bytes)
Relay Panel
shore-2-32.JPG (197958 bytes)
Microwave Relay System Block Diagram (used to communicate with Transmitter and Receiver sites)
-
RadioBarrigada02-vi.jpg (43615 bytes)
Fig 1-2 Transmitter building & antenna switchyard (Guam)
RadioBarrigada15-vi.jpg (29597 bytes)
Transmitter antenna switchyard (Guam)
 xmtr-bldg-05.JPG (622097 bytes)
Fig 2-20 Transmitting Station
-
xmtr-bldg-00.JPG (578089 bytes)
2-50q - transmitter building design
xmtr-bldg-02.JPG (574006 bytes)
2-50s - transmitter building design
xmtr-bldg-03.JPG (574062 bytes)
2-50t - transmitter building design
xmtr-bldg-04.JPG (266262 bytes)
2-50u -  transmitter building design
quonset-xmtr-bldg.JPG (2049468 bytes)
Quonset Pt. Transmitter Building (1940)
- - -

NAVCOMMSTA Nea Makri - thanks to Mike Ellis
nea-makri-67.JPG (56781 bytes)